開放的なルーフバルコニー
御器所駅近くのモダン空間

セブンスターマンション御器所 Modern
10年保証対象
セブンスターマンション御器所403号室
1,645万円
ローンの目安:22,836円 / 月 昭和区広路本町一丁目4番地1、4番地2 名古屋市営鶴舞線「御器所」駅まで徒歩約6分
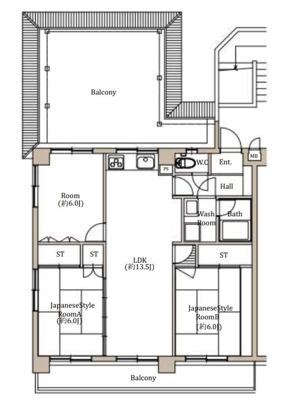
  • 3LDK    専有面積 69.26㎡ / バルコニー面積 34.76㎡
  • ペット飼育:不可

間取り

間取り

ブラックと木目のモダン空間

木目の天井とグレージュの内装が落ち着いたトーンのモダン空間を作り出します。シックな雰囲気と木の温かみを併せ持つ上品なお部屋です。
ブラックと木目のモダン空間

使いやすいLDK

リフォームによって広くなったLDK。リビングスペースとダイニングスペースが緩やかに区切られ、使いやすい間取りに生まれ変わりました。
使いやすいLDK

上品な水回り

シックなデザインの浴室。シンプルでありながらも使いやすく、洗練された水回り。
上品な水回り

開放的なルーフバルコニー

開放的な空間が広がるルーフバルコニー。心地よい風を感じながら、自分だけの時間を満喫できます。
開放的なルーフバルコニー

ローンについて

借入額
1,645万円
ローンの目安
22,836円/月

【返済例概要】

  • 頭金:0万円
  • 借入金額:1,645万円(ボーナス返済割合50%)
  • 月々の返済額(年12回):22,836円
  • ボーナス月返済額(年2回):159,664円
  • 金利プラン:変動0.9%
  • 返済期間:35年
  • ※2025年11 月現在の金利で算出しております。※実際の金利はご融資が実行された時点のものが適応となり、今後の金利変動によって記載の金利・返済例概要と異なる場合がございます。※上記支払い例では繰り上げ返済などは考慮しておりません。
  • 【住宅ローン概要】
    ●取扱金融機関:愛知銀行 ●融資限度額:100万円以上1億円以下(保証会社によって借入金額が異なります)。●利率:変動金利年0.9 %●返済期間:2年以上40年以内(保証会社によって借入期間が異なります)。●返済方法:元利金等毎月返済・元金均等毎月返済より選択(ボーナス払い併用可)●事務取扱手数料:22万円(税込)もしくは借入金額×2.2%(税込)
  • ※お申込みに際しては所定の審査があります。審査の結果によってはご希望に添いかねる場合がありますのでご了承ください。※物件引渡時から発生する諸費用・管理費・修繕積立金・インターネット使用料等は含まれておりません。所有者様に別途負担が発生します。※他の支払返済のプランもございます。詳しくは物件販売係員までお尋ねください。

Modern

モダン

モダン

空間の考え方

洗練と温もりの調和

木の深みある色合いやブラウン系の落ち着いたトーンが空間全体に温もりをもたらし、石目がアクセントとして上品に映えるデザインです。インテリアはシンプルでありながらも少し高級感が感じられ、洗練された佇まいです。落ち着いた空間に囲まれながら、日常の中で小さな贅沢と安心感を得られ、家に帰るたびにほっと肩の力を抜ける心地よさを感じられます。忙しい日々もこの空間が癒しとなり、家族や友人と過ごす時間がより特別なひとときとなる、そんな上質で豊かな暮らしが待っています。

AKARI OISHI

建築コーディネーター

AKARI OISHI

この街の雰囲気

昭和区広路本町一丁目4番地1、4番地2

周辺環境について

アクセスに優れた
文教地区

名古屋市昭和区は、鶴舞線・桜通線などが通り、乗り換えなしで栄や名古屋駅へもスムーズに移動可能。文教地区としても知られ、名古屋大学などの有名大学や、数多くの教育施設があります。大きな図書館もあり、子育て世代にも安心です。
住宅地にはスーパーやカフェが点在し、生活の利便性も高い地域。買い物や外食にも困らず、日常の暮らしやすさを感じられます。緑豊かな川名公園や鶴舞公園が近く、自然を感じながら穏やかに暮らせます。お寺も多く、歴史ある街並みを感じられます。

この街の暮らし

  • 【御器所(ごきそ)駅】
鶴舞線と桜通線が通っている名古屋市営地下鉄の駅です。名古屋駅まで15分程度で到着します。
読み方が難しい町名がついた駅名。町名の由来は、熱田神宮の神事で使う土器を作っていたからだそうです。

    【御器所(ごきそ)駅】
    鶴舞線と桜通線が通っている名古屋市営地下鉄の駅です。名古屋駅まで15分程度で到着します。
    読み方が難しい町名がついた駅名。町名の由来は、熱田神宮の神事で使う土器を作っていたからだそうです。

  • 【マックスバリュ御器所店】
名古屋市昭和区にある便利なスーパーマーケットです。駅から近く、本物件からも徒歩5分程度の距離にあります。食品や惣菜、日用品まで幅広く揃うため、仕事帰りや日常の買い物に立ち寄りやすい便利なお店です。

    【マックスバリュ御器所店】
    名古屋市昭和区にある便利なスーパーマーケットです。駅から近く、本物件からも徒歩5分程度の距離にあります。食品や惣菜、日用品まで幅広く揃うため、仕事帰りや日常の買い物に立ち寄りやすい便利なお店です。

outline

物件概要

住所
昭和区広路本町一丁目4番地1、4番地2 (→Google Map)
専有面積
69.26㎡
バルコニー面積
34.76㎡
用途地域
第一種住居
築年月
昭和55年(1980年)8月
総戸数
10戸
構造・階層
RC造4階建4階部分
権利形態
所有権
管理費
14,000円/月
駐車場

敷地内駐車場:

14,000円

1台継承可

空有

駐輪場

駐輪場:

1,000円 1,500円 /月

現況
空室
入居時期
相談
電気
中部電力
水道
公営水道
排水
公共下水
ガス
都市ガス
交通
名古屋市営鶴舞線「御器所」駅まで徒歩約6分
学区
松栄小学校 徒歩約7分/桜山中学校 徒歩約19分
町内会費
詳細は町内会にご確認ください
管理形態
自主管理
ペット飼育
不可
備考
エレベーター無
同じ空間の販売中物件